Toggle navigation
のぎ
地区
NOGI AREA
法人本部
やましろ地区
お知らせ
アクセス
HOME
つわぶきこども園のぎ
つわぶきクリニックのぎ
お知らせ
アクセス
法人本部
やましろ地区
HOME
つわぶきこども園のぎ
施設のご紹介
つわぶきこども園のぎ
Nogi child institution
こども園について
活動内容
施設のご紹介
病児保育
施設のご紹介
施設のご紹介
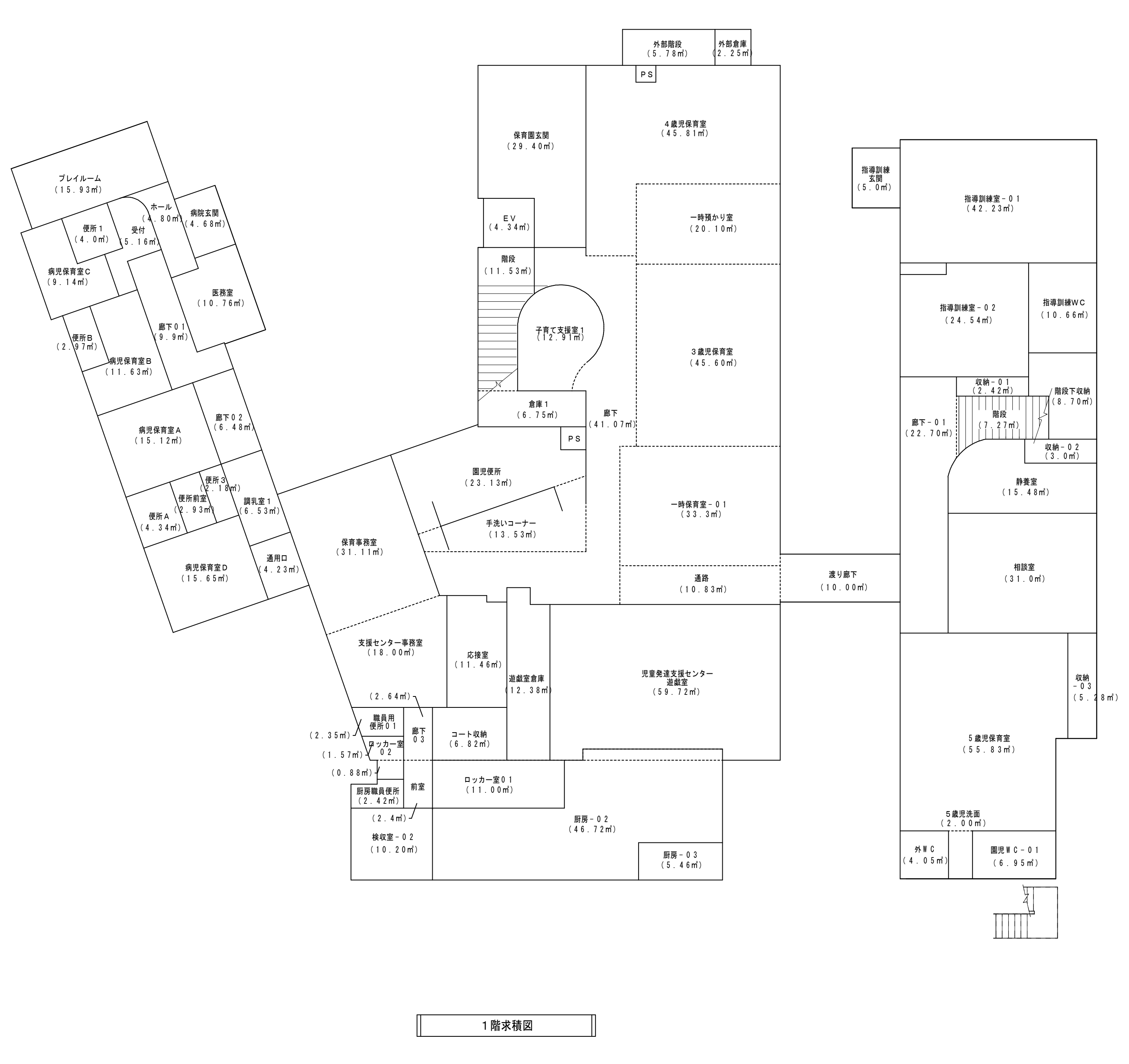
1階
2階
↑ PAGE TOP